
Mobilhaus Natalia
ab 65.000 € inkl. MwSt., Inventar, Lieferung, Montage und passender Photovoltaikanlage (inkl. Wechselrichter und Speicher)
Mobilhaus Natalia
- moderner Bungalowstil in den Größen M, L, XL oder XXL
Durch einzelne Module kann das Mobilhaus Natalia von 24m² bis 80m² erweitert werden.
Individuelle Module planbar als z.B. begehbares Ankleidezimmer, oder Bad mit großer Dusche/Badewanne.
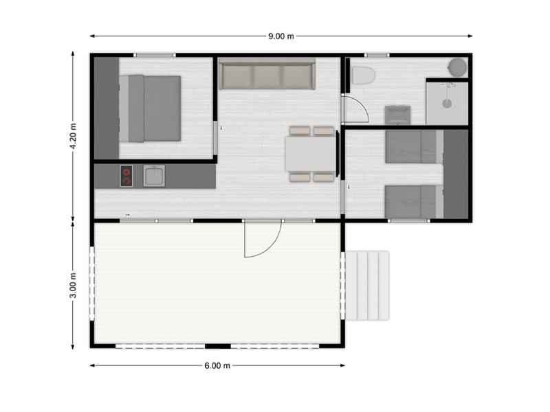
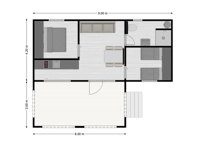
Beispielgrundrisse für Natalia L:
Beispiel Natalia L + Terrasse 5,9m x 3,0m
Die Terrasse kann Optional durch ein Glasschiebesystem zum Wintergarten erweitert werden.
-
Länge: 8,9m, Breite: 4,2m
-
Grundfläche: 37,38m2
-
Deckenhöhe 2,3m
-
Terrasse 5,9m x 3,0m
-
2 oder mehr Betten
-
Schlafzimmer: 2
-
Badezimmer: 2
-
PVC - Fenster (außen anthrazit, innen weiß)
-
PVC - Eingangs-Flügeltüren (außen anthrazit, innen weiß)
-
Unterer Teil der Fassade (Sockel) - Fassadenplatten
Aussen:
-
Fassadenbeschichtung (Mineralputz)
-
Optional - Sibirisches Lärchenholz
Außenwände:
-
Beidseitige Metallkonstruktion mit Vitocel-Dämmplatten
-
Schall- und Wärmedämmung
-
Außenseite - Mineralputz
-
Gestrichene Wände
Dach:
-
Satteldach oder Pultdach
-
Verzinkte Metallkonstruktion
-
OSB-Platten
-
Schall- und Wärmeisolierung
-
Dachgummi - SIKA
-
ALU-Umrandung und Abflüsse
Fußboden:
-
Verzinkte Metallkonstruktion
-
OSB-Platten auf der Oberseite, OSB-Platten auf der Unterseite
-
Schall- und Wärmeisolierung
-
Spezielle Schutzbeschichtung gegen Feuchtigkeit
-
Gehäuse aus verzinktem Metall
-
Ausgleichsfüße
Interieur:
Inkl. Schiebetüren (mit Wandmontage), Fliegengitter, Elektrische Leitung 230V, elektr. Boiler 80l, Küchenlampe, Kabel für TV und Internet, Deckenlampen, Fußbodenheizung
Innenwände:
-
Verzinkte Metallkonstruktion belegt mit Vitocel-Dämmplatten und Knauf Platten
-
Schalldämmung
-
In die Wände eingebaute Schiebetüren
-
Gestrichene Wände
Decke:
-
Flache Decke
-
Verzinkte Metallkonstruktion belegt mit Knauf-Platten
-
Gestrichene Decke
Boden:
-
Vinylboden (optional anpassbar)
2x Schlafzimmer:
-
1. Zimmer: Bett 160x200cm und Matratze 160x200cm
-
2. Zimmer: 2x Bett 80x200cm und 2x Matratze 80x200cm
-
Elektrische Anlagen, Schalter, Steckdosen, LED-Leuchten
-
PVC-Fenster + Moskitonetz
-
Garderobenschrank
-
Vinlyboden mit Abschlussstreifen
2x Badezimmer:
-
Dusche mit Glastür
-
Wasser- sowie Abwasseranschluß
-
Toilettenanlage mit Spülkasten
-
Badezimmerheizkörper
-
1x Waschmaschinenanschluss
-
Badezimmermöbel mit Waschbecken, Armaturen und Spiegel
-
Geflieste und gestrichene Wände
-
PVC-Fenster (Milchglas) + Moskitonetz
-
Vinylboden mit Abschlussstreifen
-
Elektrische Anlagen, Schalter, Steckdosen, LED-Leuchte
Tagesraum:
-
Küchenelemente
-
Küchentisch
-
Küchenstühle 4 Stück
-
Küchenspüle mit Wasserhahn
-
Geschirrspülmaschine
-
Kühlschrank + Tiefkühlfach
-
Kochplatte (2x Induktion)
-
Klimasplitgerät (kühlen/heizen), Vorbereitung für WLAN
-
LED TV 40"
-
Küchenrückwand
-
PVC - Eingangs-Flügeltüren
-
Vinyl mit Abschlussstreifen
-
Elektrische Anlagen, Schalter, Steckdosen, LED-Leuchten
Terrasse 17,7m²
-
Überdachte Terrasse (5,9 m x 3,0 m)
-
Verzinkte Metallkonstruktion beidseitig belegt mit Vitocel-Dämmplatten
-
Außen- und Innenseite: Mineralputz
-
Flachdach mit Attika und 15°-Neigung
-
WPC-Kunststoffdielen/-boden
-
Aluminiumgeländer
-
Treppe - WPC auf Metallkonstruktion
-
Elektrische Anlagen, Schalter, Steckdosen, LED-Leuchten
-
Ausgleichsfüße
-
Optional: als Wintergarten verglasbar
Sie haben Interesse?
Sie haben Fragen zu Preisen, Genehmigungen, individuellen Lösungen oder Grundstücken?
Wir beraten Sie gerne – kostenlos und unverbindlich.






































